Descrizione

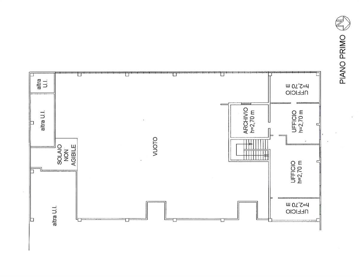
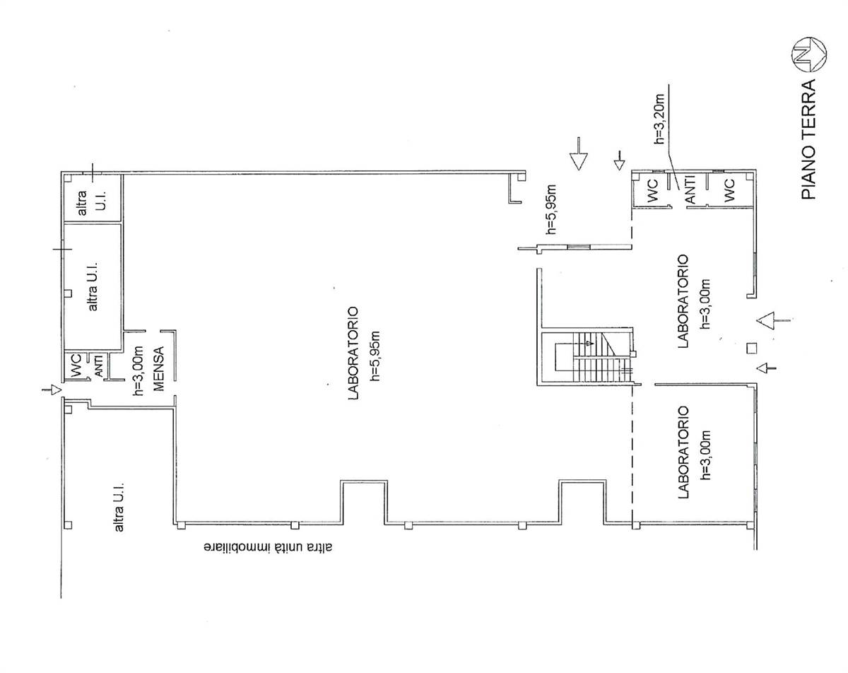
V1908 A Carpi, in zona di via Lombardia, a ridosso del centro si cede un bell'immobile libero subito con: Capannone al PT di 750mq e 100mq di uff al P1 e con area cortiiva asfaltata e chiusa da cancello.
Categoria D7 In totale sono oltre 850mq.piu l'area
La richiesta è di € 320.000,00 trattabili

Prezzi definitivi, Foto interne e altri documenti disponibili in ufficio.

Per ulteriori informazioni:
IMMOBILIARE EUROPA SRL
Pascucci Giorgio
3356306074
pascucci@immobiliareuropa.it
www.immobiliareuropa.it


Caratteristiche principali

Stato Immobile
Buono
Grado
Medio
Panorama
Vista Aperta
Accessori: Passaggio Automobilistico, Passaggio Pedonale, Video Sorveglianza

Richiedi informazioni

Invia
Cookie preference