Descrizione

V1904 Cediamo nostra escusiva, un' immobile con 2 appartamenti ingressi indipendenti con abbondanti spazi esterni adatti per ogni desiderio ........
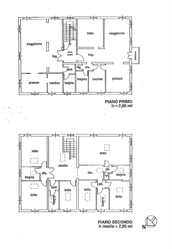
Voglio la casa grande? c'è; 2 appartamenti di 200mq cad
Voglio un giardino grande? c'è 2500mq con terreno alberato
Voglio il garage? oggi uno x 2 auto e uno lo possiamo fare.
Vogliamo i posti auto coperti? c'è uno con antigrandine per 2 auto
Siamo appasionati di barbeque ...c'è
Volete la piscina..c'è ; fuori terra ma di grandi dimensioni circa 10x4 mt
Avete la passione dei vini e volete una grande cantina? c'è di 80mq
e ci sono tante, tante altre sorprese positive.
L'immobile Dispone infatti di due appartamenti autonomi di grandi dimensioni oltre 200mq cad, e oltre 2500 di giardino a prato e alberato
Stiamo parlando della Casa perfetta per Genitori e figli, per due fratelli, per due Amici, una grande famiglia, che vogliono condividere grandi spazi aperti, parcheggi abbondanti e comodi e appartamenti con grandi spazi, subito abitabili e perfettamente funzionanti.
Riscaldamenti con caldaie a condensazione e clima autonomi
6 kw di panelli solari.
Unico vincolo I due appartamenti e i loro accessoriri vengono venditi solo insieme.
Cosa ne dite...valgono una visita
La richiesta è di 890.000,00 trattabili
Foto e indirizzi per salvaguardare la privacy dei ns clienti sono di repertorio per immobili simili.
SI RICEVE SOLO SU APPUNTAMENTO
Per maggiori informazioni
Immobiliare Europa srl
335 6306074
pascucci@immobiliareuropa.it


Caratteristiche principali

Stato Immobile
Buono
Grado
Signorile
Posizione
Campagna
Accessori: Aria Condizionata, Cancello Elettrico, Doppi Vetri, Impianto Fotovoltaico, Pannelli Solari, Parco Condominiale, Passaggio Automobilistico, Piscina, Porta Blindata, Tavolini Esterni, Tennis, Zanzariere

Richiedi informazioni

Invia
Cookie preference